kód: 219820
eladó családi ház - Nagycenk

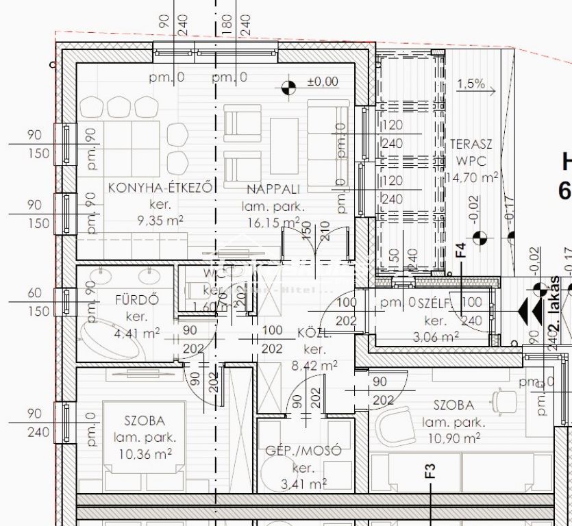
méret: 67.67 nm
telek mérete: 374 nm
állapot: új építésű
építés anyaga: tégla
fűtés:

ár: 79.990.000 Ft

Eladó új építésű ikerház, ajándék konyhabútorral  a Széchenyi Village-ben, Nagycenken!

Nagycenken, a Széchenyi Village lakóparkban kínálunk eladásra egy egyszintes, 67,67 m²-es ikerházat14,7 m²-es terasszal25 m²-es gépkocsibeállóval és 374 m² saját kerttel.
A modern otthon nappali + 2 szobás kialakítású, a ház fűtését levegős hőszivattyú biztosítja padlófűtéssel, emellett a hűtő-fűtő klíma és a vízlágyító rendszer előkészítéséről is gondoskodnak.

Igény esetén tetőtér beépítés is kérhető!
Várható átadás: 2026 ősz


Ár: 79.990.000 Ft Érd: +3620/939-7745

Szeretné megvásárolni a fenti ingatlant? Mi segítünk a finanszírozásban!

https://www.lakaskulcs.hu/hitel